
中空型分離式千斤頂是荷蘭荷馬特holmatro液壓千斤頂系列產品,該品牌公司擁有超過五十年的歷史,1967年成立,現有煙臺開發區龍海起重工具有限公司銷售(品牌介紹:荷蘭荷馬特holmatro品牌)。

中空型分離式千斤頂介紹:
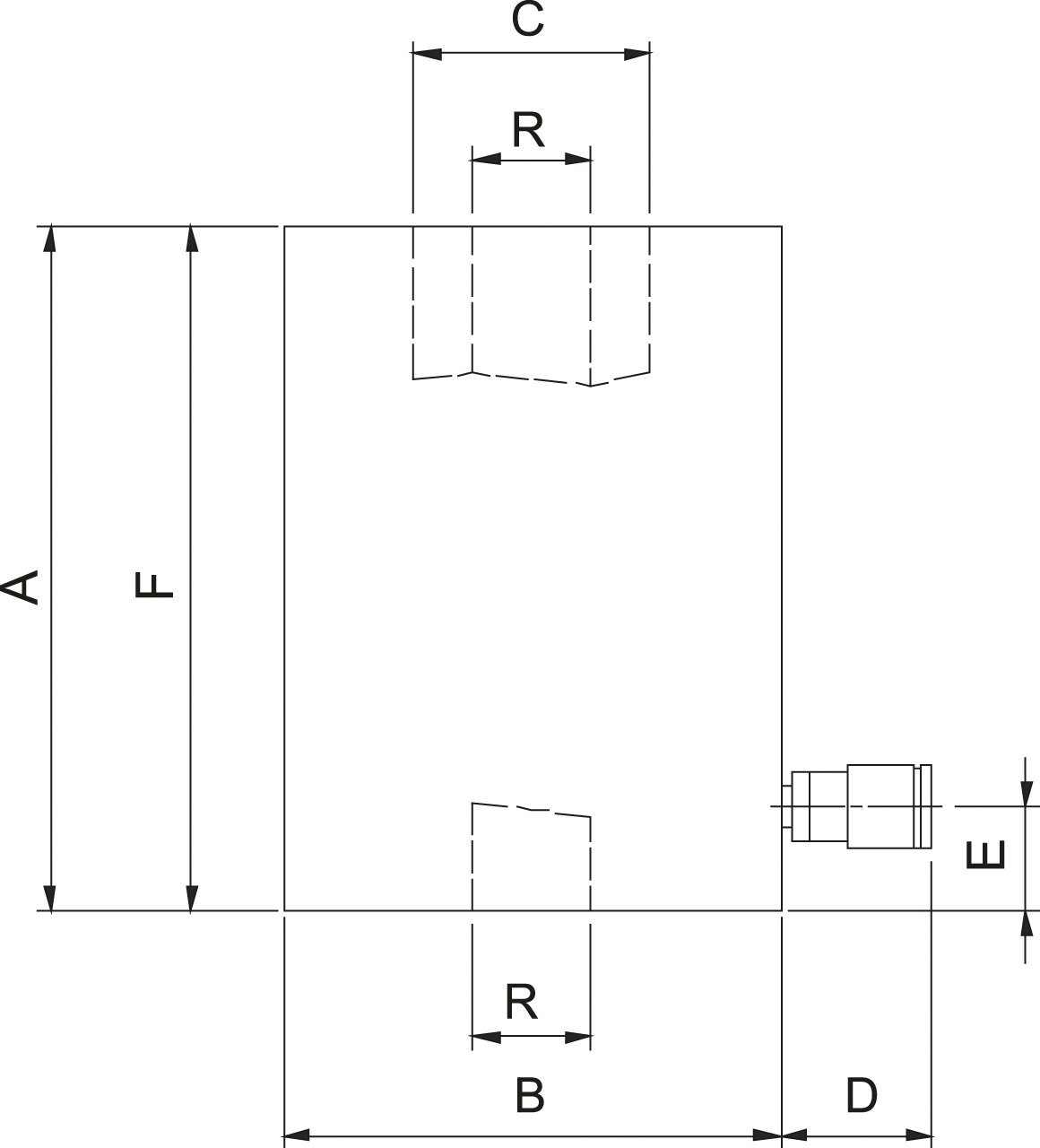
*中空型分離式千斤頂采用單作用設計,重力回位中空油缸;特為拉伸使用而開發的拉桿
*中空型分離式千斤頂結構緊湊、適用于所有位置
*荷馬特holmatro中空型分離式千斤頂避免活塞噴出
holmatro中空型分離式千斤頂標配:
*高流量母接頭A118


中空型分離式千斤頂應用:
中空型分離式千斤頂適用于橋梁升降、鐵路隧道建設、高空吊裝橋梁構件、施工與安裝、重型運輸機和起重機、礦廠、石油天然氣、船舶建造、儲罐施工和維護等場合

中空型分離式千斤頂可應要求提供
*按客戶規定生產的
*頸部螺紋
*底部安裝孔

中空型分離式千斤頂為荷蘭荷馬特holmatro原裝進口產品,保質1年,我公司承諾凡是客戶在我公司定購的進口類產品均為原裝正品,絕不存在拆件貨,換件貨,假冒品牌產品,凡客戶從我公司訂購荷蘭荷馬特holmatro產品如收到貨物時發現有拆件貨,換件貨,假冒、假貨仿貨均以100倍金額賠償。
產品選型:分離式千斤頂?